Box / posti auto in affitto

Bagheria, Via Cosimo Contorno - Bagheria Bassa
€ 800 / mese
1 locale 1 locale
139 Mq 139 Mq
2 bagni 2 bagni

Box / posti auto in affitto

Bagheria, Via Cosimo Contorno - Bagheria Bassa

Descrizione annuncio

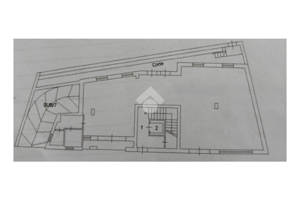
Bagheria – Via Cosimo Contorno. In zona centrale e ben servita, a pochi passi dalle vie principali, proponiamo in locazione un ampio locale commerciale situato al piano terra.

L’immobile dispone di una superficie di circa 139 mq ed è caratterizzato da una doppia esposizione su Via San Fratello. L’ingresso principale, situato su Via Cosimo Contorno, è dotato di tre saracinesche automatizzate, mentre un ulteriore accesso di servizio è presente su Via San Fratello.

L’interno si presenta come un unico grande vano, reso luminoso dalla presenza di quattro finestre alte con affaccio sul retro prospetto. Due porte conducono alla corte esterna, dove è collocato un ingresso pedonale ideale per operazioni di carico e scarico merci.

La soluzione è completata da un antibagno e da due servizi, di cui uno adeguato per persone con disabilità.

Il locale si presenta in ottime condizioni, grazie alla recente costruzione, alle rifiniture moderne e all’impiego di materiali termo-isolanti che assicurano elevati livelli di efficienza energetica e comfort interno.


Una soluzione ideale per chi necessita di uno spazio versatile e ben organizzato, perfetto per numerose attività: studi medici, studi dentistici, studi di fisioterapia, studi professionali, uffici, piccole attività commerciali, showroom, centri servizi o altre realtà che richiedono visibilità e funzionalità, in una zona strategica e centrale di Bagheria.

E' possibile ricevere maggiori informazioni in merito e/o fissare un appuntamento contattando il numero di rete fissa 091 6618324 o il nostro numero WhatsApp 3755198959 che puoi aggiungere direttamente ai tuoi contatti. Seguiteci anche su facebook, cliccando 'mi piace' sulla pagina Gruppo Tecnocasa Bagheria Libertà-Aspra

Mostra tutto

Nelle vicinanze

Trasporto pubblico Trasporto pubblico
stazione di Bagheria
stazione di Bagheria
850 m
Santa Flavia-Solunto-Porticello
Santa Flavia-Solunto-Porticello
1,9 Km
Scuole Scuole
Scuola elementare Bagnera
340 m
scuola di musica "The Ensemble"
360 m
Elementare Giuseppe Cirrincione
470 m
Scuola di Informatica - Logiteach
500 m
Scuola Girgenti
520 m
Farmacia Farmacia
Farmacia
290 m
Di Fede
350 m
Mancuso
420 m
Farmacia dei Pilastri
420 m
Parafarmacia Igea
590 m
Supermercati Supermercati
Sigma
200 m
erboristeria
240 m
Paghi Poco
260 m
Conad
420 m
Maxistore Decò
450 m
Negozi Negozi
Sisley
70 m
Centro Market calzature e abbigliamento
220 m
stock firme
220 m
Martial boutique donna
250 m
Salumeria Lilly Market
250 m
Bar Bar
Il Chiosco dei F.lli Sardina
2,7 Km
Ristoranti Ristoranti
Münchhausen
240 m
Risto Pizza St. John
280 m
Zza' Maria
340 m
self service Molinaro
350 m
L’arco del corso
470 m
Mostra tutto

Caratteristiche

Rif.:
61150330
Piano:
Terra di 2
Totale piani:
2
Arredamento:
Assente
Condizionamento:
Autonomo
Ascensore:
No
Mostra tutto
Prezzo Prezzo
€ 800 / mese
Spese annue Spese annue
€ 0

Classe Energetica

A1
A1
A1
A1
A1
A1
A1
A1
A1
EP globale non rinnovabile:
159.68 kW h/m² anno
EP globale rinnovabile:
14.83 kW h/m² anno
EP invernale del fabbricato:
EP estiva del fabbricato:
Anno di costruzione:
2020
Riscaldamento:
Autonomo
Tipo impianto:
A radiatori
Tipo alimentazione:
Metano

Ti interessa visionare l'immobile?

Fissa un appuntamento  Fissa un appuntamento

Richiedi informazioni

Clicca su Leggi per aprire l'informativa
* Questi campi sono obbligatori
Affiliato
Studio Liberta' Bagheria D.I.
Viale Della Libertà, 35 90011 Bagheria (PA)

Il nostro staff


  • Anna Febbrarino
    Affiliata

  • Marianna Bruno
    Coordinatrice

  • Giuseppe Dipaola
    Collaboratore

  • Ruggiero Dipaola
    Responsabile

  • Maria Scaduto
    Collaboratrice
Viale Della Libertà, 35 90011 Bagheria (PA)
Zona: Bagheria - Aspra
Mostra su mappa
Orari: lun- ven 09:00 13:00 15:30 19:30 - Sabato 09:00 13:00
Affiliato
Studio Liberta' Bagheria D.I.
Viale Della Libertà, 35 90011 Bagheria (PA)

2026 Tecnocasa Franchising S.p.A. - P. IVA 08365160152 - Via Monte Bianco 60/A 20089 Rozzano (MI). Ogni agenzia ha un proprio titolare ed è autonoma. Privacy policy | Policy utilizzo | Cookie policy